潔凈實驗室
潔凈實驗室概述及標準:
潔凈實驗室是一個全密閉的環境,通過空調送、回風系統的初、中、高效過濾器,是室內環境空氣不斷循環過濾,以保證空氣懸浮粒子受控到一定濃度,潔凈實驗室需控制的主要參數有塵埃粒子數、菌落數、換氣次數、壓差、溫度、濕度、光照度、噪音。
亦即是不論外在之空氣條件如何變化,其室內均能俱有維持原先所設定要求之潔凈度、溫濕度及壓力等性能之特性。潔凈實驗室最主要之作用在于控制產品(如硅芯片等)所接觸之大氣的潔凈度日及溫濕度,使產品能在一個良好的環境空間中檢測、科研,所以我們通常也叫超凈實驗室,潔凈實驗室,凈化實驗室等等。

潔凈實驗室凈化工程方案介紹:
1、科瓦特實驗室凈化工程主要包括:生物安全實驗室、P2實驗室、P3實驗室、HIV實驗室、PCR實驗室、動物實驗室,無菌實驗室,細胞培養室等等。
2、主要用于微生物學、生物醫學、生物化學、動物實驗、基因重組以及生物制品等研究使用的實驗室統稱潔凈實驗室-生物安全實驗室。
3、生物安全實驗室由主實功能驗室與其他實驗室及輔助功能用房組成。
4、生物安全實驗室必須保證人身安全、環境安全、廢棄物安全和樣本安全,能長期而安全地運行,同時還為需要實驗室工作人員提供一個舒適、而良好的工作環境。
5、科瓦特實驗室建設方案包括:建筑布局和裝修、空氣調節、給排水、氣體供應、電氣設計、集中控制、安防、施工工藝、檢測、培訓等多方面內容。
潔凈實驗室的潔凈度等級: 標準ISO14644-1出臺取代了原FS209標準

1、中國GB國家標準
| 潔凈度級別 | 塵粒最大允許數/立方米 | 微生物最大允許數/立方米 | ||
| ≥0.5um | ≥5um | 浮游菌/立方米 | 沉降菌/皿 | |
| 100級 | 3,500 | 0 | 5 | 1 |
| 1000級 | 350,000 | 2,000 | 100 | 3 |
| 10000級 | 3,500,000 | 20,000 | 500 | 10 |
| 300000級 | 10,500,000 | 60,000 | - | 15 |
2、 標準ISO14644-1( 標準)
| 潔凈度級別 | 大于或等于表中粒徑的最大濃度值(pc/m3) | |||||
| 0.1um | 0.2um | 0.3um | 0.5um | 1um | 5um | |
| 1 | 10 | 2 | ||||
| 2 | 100 | 24 | 10 | 4 | ||
| 3 | 1000 | 237 | 102 | 35 | 8 | |
| 4(十級) | 10000 | 2370 | 1020 | 352 | 83 | |
| 5(百級) | 100000 | 23700 | 10200 | 3520 | 832 | 29 |
| 6(千級) | 1000000 | 237000 | 102000 | 35200 | 8320 | 293 |
| 7(萬級) | - | - | - | 352000 | 83200 | 2930 |
| 8(十萬級) | - | - | - | 3520000 | 832000 | 29300 |
| 9(一百萬級) | - | - | - | 35200000 | 8320000 | 293000 |
實驗室凈化系統描述:氣流→初效凈化→空調→中效凈化→風機送風→管道→高效凈化風口→吹入房間→帶走塵埃細菌等顆粒→回風百葉窗→初效凈化....(重復以上過程)
潔凈實驗室的氣流形式:

1、非單向流潔凈區
2、單向流潔凈區(水平、垂直流向)
3、合流潔凈區
4、環形/隔離裝置
注:混合流潔凈區是ISO標準提出的,即把實際早已存在的非單向流潔凈室設置了局部的單向流的潔凈工作臺/層流罩對關鍵部位進行“點”或“線”的保護,以減少單向流潔凈區的面積。
潔凈實驗室設計規范:
(1)潔凈廠房設計規范GB50073-2001
(2)潔凈室施工及驗收規范JG71-90
(3)電子工業潔凈廠房設計規范GB50472-2008
(4)醫藥工業潔凈廠房設計規范GB50457-2008
(5)醫院潔凈手術部建筑技術規范GB50333-2002
(6)<消毒管理辦法>(衛生部1992)
(7)甲方提供的實驗室平面布置圖等有關技術資料和要求;
潔凈實驗室|實驗室凈化工程項目的主要控管項目
l能除去空氣中漂游之微塵粒子
l能防止微塵粒子之產生
l溫度和濕度之控制
l壓力之調節
l有害氣體之排除
l結構物與隔間之氣密性
l靜電之防止
l電磁干擾預防
l安全因素之考慮
l節能之考量

三種常用潔凈實驗室凈化空調系統
1、直流式凈化空調系統
直流式系統就是不用回風循環系統,也就是直送直排系統,其能耗很大。這種系統一般適用于有致敏性的生產工藝(如青霉素分裝工藝)、實驗動物房、生物安全潔凈室(實驗室)及能形成交叉污染生產工藝。采用這種系統時應考慮余熱的回收。
2、全循環式凈化空調系統
全循環式系統即無新風供給,也無排風的系統。這種系統無新風負荷,很節能,但室內空氣品質差,壓差不好控制,一般適用于無人操作、值守的潔凈室。
3、部分循環式凈化空調系統
這是用得最多的系統形式,也就是有部分回風參與循環的系統。在系統中,新風和回風混合經處理送到無塵潔凈室內,回風的一部分用于系統循環,另一部分被排走。該系統壓差易于控制,室內品質較好,能耗介于直流式系統與全循環式系統之間,適用于允許采用回風的生產工藝。
潔凈實驗室建筑布局與設計原理指南
潔凈室的建筑布局和凈化空調系統有密切關系,凈化空調系統既要服從建筑總體布局,建筑布局也要符合凈化空調系統的原則,才能充分發揮相關功能的作用。凈化空調的設計者不僅要了解建筑布局以考慮系統的布置,而且要給建筑布局提出要求,使其符合潔凈室原理。
1、潔凈實驗室的平面布局
潔凈室一般包括潔凈區、準潔凈區和輔助區三部分。

2、潔凈實驗室的平面布置可以有以下幾種方式:
外廊環繞式:外廊可以有窗和無窗,兼作參觀和放置一些設備用,有的在外廊內設值班采暖。外窗必須是雙層密封窗。
內廊式:潔凈室設在外圍,而走廊設在內部,這種走廊的潔凈度級別一般都較高,甚至和潔凈室同級。
兩端式:潔凈區設在一邊,另一邊設準潔凈和輔助用房。
核心式:為了節約用地、縮短管線,可以潔凈區為核心,上下左右被各種輔助用房和隱蔽管道的空間包圍起來,這種方式避開室外氣候對潔凈區的影響,減少了冷熱能耗,利于節能。

3、人身凈化路線
為了在操作中盡量減少人活動產生的污染,人員在進入潔凈區之前,必須更換潔凈服并吹淋、洗澡、消毒。這些措施即“人身凈化”簡稱“人凈”。人凈用房中更換潔凈服的房間應予送風,并對入口側等其他房間保持正壓,對廁所、淋浴保持少許正壓,而廁所、淋浴應保持負壓。
4、物料凈化路線
各種物件在送入潔凈區前必須經過凈化處理,簡稱“物凈”。物料凈化路線與人凈路線應分開,如果物料與人員只能在同一處進入潔凈室,也必須分門而入,物料并先經過粗凈化處理。對于生產流水線不強的場合在物料路線中間可設中間庫。如果生產流水線很強,則采用直通式物料路線,有時還需要在直通路線中間設多次凈化、傳遞設施。在系統設計上,物凈用房的粗凈化和精凈化階段由于會吹落很多生微粒,所以相對潔凈區應保持負壓或零壓,如果污染危險性大則對入口方向也要保持負壓。

5、管線組織
潔凈室的管線非常復雜,所以對這些管線均采用隱蔽組織方式。具體隱蔽組織方式有以下幾種。
(1)技術夾層
a.頂部技術夾層。在這種夾層內一般因送、回風管的斷面最大,故作為夾層內首先考慮的對象。一般將其安排在夾層的最上方,其下安排電氣管線。當這種夾層的底板可承受一定重量時,可以在上面設置過濾器及排風設備等。
b.房間技術夾層。這種方式和只有頂部夾層相比,可以減少夾層的布線與高度,可以省去回風管道返回上夾層所需的技術夾道。在下夾道內還可設回風機動力設備配電等,某層潔凈室的上夾道可以兼做上一層的下夾道。
6.技術夾道(墻)
上下夾層內的水平管線一般都要轉向為豎向管線,這此豎向管線所在的隱蔽空間即技術夾道。技術夾道還可以放置不宜在潔凈室內的一些輔助設備,甚至還可以作為一般回風管道或靜壓箱,有的可安設光管型散熱器。這類技術夾道(墻)由于大多采用輕質隔斷,所以當工藝調整時,可方便地進行調整。
7.技術豎井
如果說技術夾道(墻)往往不越層,則需要越層時即用技術豎井,并且經常作為建筑結構的一部分,具有永久性。由于技術豎井把各層串通起來,為了防火,內部管線安裝完成后,要在層間用耐火極限不低于樓板的材料封閉,檢修工作分層進行,檢修門必須設防火門。不論技術夾層、技術夾道還是技術豎井,當直接兼作風道時,其內表面必須按潔凈室的內表面的要求處理。
8、機房位置
空調機房靠近要求送風量大的潔凈室,力求風管的線路最短。但從防止噪聲和振動來說又要求把潔凈室與機房隔開。
9、安全疏散
由于潔凈室是密閉性很強的建筑,其安全疏散成為非常重要和突出的問題,和凈化空調系統設置也有密切關系。一般應注意以下幾點:
(1)每一生產層防火區或潔凈區至少設2個安全出口,只有面積小于50㎡,人員少于5人時,可允許只設一個安全出口。
(2)人凈入口不應作疏散出口。因為人凈路線往往迂回曲折,一旦煙火迷漫,要求人員很快跑到室外是很困難的事。
(3)吹淋室不能作為一般出入通道,由于這種門常為兩扇聯鎖或自動,一旦出現故障,非常影響疏散,所以一般均在吹淋室設旁通門,工作人員多于5人時必須設此門。平時工作人員出潔凈室時不應走吹淋室而應走旁通門。
(4)潔凈區內各潔凈室的門,考慮到維持室內壓力狀況的需要,其開設方向要朝向壓力大的房間,因為要靠壓力把門壓緊,這顯然和安全疏散的要求相反。為了考慮平時潔凈和緊急疏散時的兩方面要求,規定潔凈區和非潔凈區之間的門、潔凈區與室外的門作為安全疏散門對待,其開啟方向一律朝向疏散方向,當然,單設的安全門也是如此。

潔凈實驗室檢測與驗收標準:
檢測項目:潔凈間的塵埃粒子數、沉降菌、浮游菌、壓差、換氣次數,風速、新風量、照度、噪聲、溫度、相對濕度等。
參照檢測標準:
1《潔凈廠房設計規范》GB50073-2001
2《醫院潔凈手術部建筑技術規范》GB50333-2002
3《生物安全實驗室建筑技術規范》GB50346-2004
4《潔凈室施工及驗收規范》GB50591-2010
5《醫藥工業潔凈室(區)懸浮粒子的測試方法》GB/T16292-2010
6《醫藥工業潔凈室(區)浮游菌的測試方法》GB/T16293-2010
7《醫藥工業潔凈室(區)沉降菌的測試方法》GB/T16294-2010
注:(1)在靜態條件下潔凈室(區)監測的懸浮粒子數、浮游菌數或沉降菌數必須符合規定。測試方法應符合現行國家標準《醫藥工業潔凈室(區)懸浮粒子的測試方法》GB/T16292、《醫藥工業潔凈室(區)浮游菌的測試方法》GB/T16293和《醫藥工業潔凈室(區)沉降菌的測試方法》GB/T16294的有關規定;
(2)空氣潔凈度100級的潔凈室(區)應對大于等于5μm塵粒的計數多次采樣,當大于等于5μm塵粒多次出現時,可認為該測試數值是可靠的。
(3)潔凈室(區)的溫度和濕度,應符合下列規定:生產工藝對溫度和濕度無特殊要求時,潔凈室(區)溫度應為18~26℃,相對濕度應為45%~65%
(4)不同空氣潔凈度等級的潔凈室(區)之間以及潔凈室(區)與非潔凈室(區)之間的空氣靜壓差不應小于5Pa,潔凈室(區)與室外大氣的靜壓差不應小于10Pa。
(5)潔凈室(區)應根據生產要求提供照度,并應符合下列規定:
1)主要工作室一般照明的照度值宜為300lx。
2)輔助工作室、走廊、氣閘室、人員凈化和物料凈化用室的照度值不宜低于150lx。
3)對照度有特殊要求的生產部位可設置局部照明。
(6)非單向流潔凈室(區)的噪聲級(空態)不應大于60dB(A),單向流和混合流潔凈室(區)的噪聲級(空態)不應大于65dB(A)。
潔凈實驗室
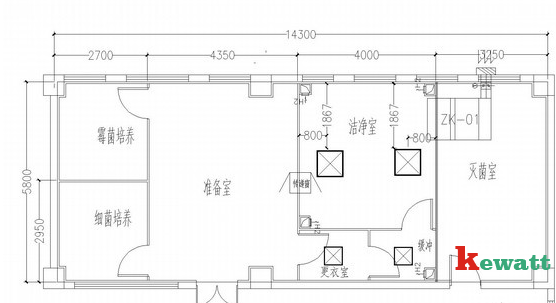
潔凈實驗室案例一:
工程名稱:動態萬級潔凈實驗室
建設單位:生物科技有限公司
工程內容:動態萬級潔凈實驗室凈化系統、電氣系統、結構維護及地面處理整體建設。
工程狀況:實驗室總面積約900平米,層高2.8米,溫度22-25攝氏度,潔凈度整體動態萬級。
實驗室平面布局:

推薦成功案例:


同類文章排行
- 實驗室規劃建設需要注意的地方
- 科瓦特2023年春節放假通知
- 成功簽約常熟立訊實驗室改造工程
- 喜訊,簽約完美生命科技研究院SPF動物實驗室
- 中山科瓦特國慶中秋放假通知
- 簽約中山板芙醫院PCR檢測室工程
- 喜訊 中標鴻基創能科技公司實驗室工程
- 成功簽約廣東威科質量檢測公司SPF級動物實驗室
- 2019年,科瓦特機電開工大吉
- 2019年春節放假通知
最新資訊文章
- 實驗室設計公司如何選擇
- 實驗室裝修設計方案需考慮哪些因素
- 實驗室裝修要考慮哪些因素
- 建設一個實驗室要花費多少錢,周期多長
- 實驗室裝修施工流程有哪些
- 實驗室空間如何布局
- 實驗室設計要注意那些要點
- 實驗室臺如何布局更好
- 實驗室裝修細節大揭秘
- 實驗室設計周期是多久?






